$549,900
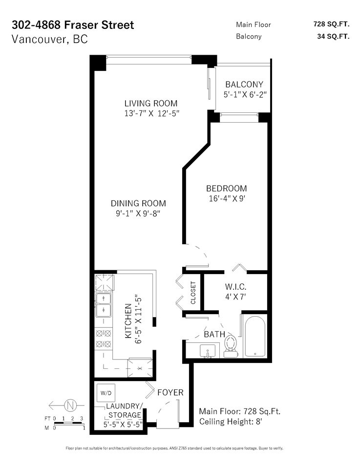
#302 - 4868 Fraser Street
Sold
More information
Features & amenities
- Elevator
- In Suite Laundry
- Storage
Additional details
- MLS® # R2476379
- Type Condo/Townhouse
- Subtype Apartment/Condo
Listing is presented by
SHANNON MCNULTY Personal Real Estate Corporation
Stilhavn Real Estate Services