This listing is provided by Maude, MacKay & Company Limited
$1,498,000
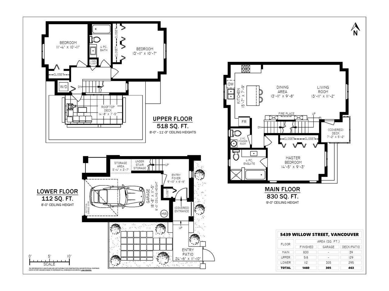
5439 Willow Street
Sold
This listing is provided by Maude, MacKay & Company Limited
More information
Listing provided courtesy of Greater Vancouver REALTORS®. Disclaimer: The information contained in this listing has not been verified by Stilhavn Real Estate Services and should be verified by the buyer.
Features & amenities
- Central Location
- Recreation Nearby
- Shopping Nearby
- Fireplace 1
Additional details
- MLS® # R2527541
- Type Condo/Townhouse
- Subtype Townhouse
Listing is presented by
SHANNON MCNULTY Personal Real Estate Corporation
Stilhavn Real Estate Services